adt-osmosis_construction_text.gif (1003 bytes) Download Printer Friendly .PDF VersionArchitectural Desktop 4 - Development Guide
PART 12
GRIDS - COLUMNS AND CEILINGS

Contents:
Grids - Access ---- Adding Column Grids   ---- Modifying Column Grids ---- Grids - Display Props ---- Annotating Column Grids ---- Column Grids - Customizing and Tricks ---- Adding Ceiling Grids ---- Modifying Ceiling Grids ----  Ceiling Grids - Display Pops ---- Ceiling Grids - Customizing and Tricks

1Grids - Access 1-12 GRIDS
How do I get this toolbar?
You can also acquire access to these commands from the Alternate Design pull-down menu.  From the Design pull-down menu, pick Grids > and cascade to their respective command options - see image below, right.

Illustrated to the right is the Grids Toolbar but there is another similar set of tools on the Layout Tools toolbar.  The primary difference between the Grids and the Layout Tools has to do with how these similar objects are set to display.  A Layout Grid, for example, has only one "General" display option (either on or off) where a Column Grid can be set to display in either Plan, Reflected Plan and/or Model orientations.

This means that for Columns, it is better to use the Column Grid if you want the Column Grid as part of the annotation instead of as a drafting/design tool that isn't printed.

grids_columns_toolbar.gif (1664 bytes)
layout_tools_toolbar.gif (1594 bytes)
Grids pull-down menu
Alt.Menu Design> Grids
tool_palettes_button.gif (445 bytes) navigation_toolbar.gif (2112 bytes)
Keyboard ColumnGrid, CeilingGrid or ColumnGridAdd and CeilingGridAdd
Links Adjusting to the New Interface for AutoCAD and ADT Users- for how to activate the Design pull-down menu

There are basically four types of Grids in ADT: 2D Column Grids, 2D Ceiling Grids, 2D Layout Grids and 3D Volume Grids.  In this Part, we will be looking at the 2D Column and Ceiling Grids because they are physical components of many Design / Development phases.  The Layout Grids, though useful, are more of an earlier phase, like that of Pre-Design and will be discussed later in this Guide under Part 22 - Layout Tools.

The primary function of the Column Grid is to act as an Anchoring object to which you can attach Structural Elements.  Attaching objects to a Column Grid has tremendous value because changes to the Grid will move all anchored objects as well.

 

The primary function of the Ceiling Grid is to act as an Anchoring object to which you can attach Design Content such as Fluorescent Lights, Exit Signs and Sprinklers.  Though the ceiling Grid does have fantastic possibilities, I have not found it very practical for large commercial work due to its memory consumption; it will increase a file size far more than a simple rectangular Hatch pattern.  I recommend that you run some tests before getting too far into this object type.

Below are the two primary command line read-out for "Grids":

Command: ColumnGrid
Column grid [Add/Convert/Properties/X/Y/Labeling/Dimension]:

Command: CeilingGrid
Ceiling grid [Add/COnvert//Properties/X/Y/CLip]:

2Adding Column Grids 2-12 GRIDS
Add Column Grid Properties Palette
Alt.Menu Design> Grids> Add Column Grid...
grids_add_button.gif (312 bytes) grids_columns_toolbar.gif (1664 bytes)
Keyboard ColumnGridAdd

When Adding Column Grids, the Properties Palette offers two basic Shapes ( Radial and Rectangular) and several options for spacing the grid lines.  You can Add Columns automatically before placing the Grid on your screen but there is no option to do this automatically after placing the Grid.

If you need to create a Column Grid that is not evenly spaced, create the closest layout and modify it after placement.

GENERAL
Shape
- this drop-down list offers to basic shapes: Rectangular and Radial.

Boundary - this drop-down list offers the option to "Select object..." for using a closed Polyline shape to clip the Grid.  This is far more typical for Ceiling Grids.

DIMENSIONS
Specify on Screen - set this drop-down list to "Yes" if you want to draw the Width and Depth by picking points on your screen.

X - Width - total length of grid along the X-axis.

Y - Depth - total length of grid along the Y-axis.

A AXIS
Layout Type - this drop-down list offers two options: Space Evenly and Repeat.  The Space Evenly option allows you to specify the number of Bays (Grid-lines) instead of the distance between them.  The Repeat option allows you to set the distance between each Bay (Grid-line).  After you have created a Column Grid, look for the Manual option on this drop-down list.

Bay Size - this option is only available when using the Repeat Layout Type.  Specify the distance between each Grid line.

Bay Number -  this option is only available when using the Space Evenly Layout Type.  Specify the number of Grid lines you want in any sized Column Grid.

Start offset - an amount of distance from the grid object's origin that you want the actual grid to start at.   This does not affect Spacing but it does affect overall X-Width.

End offset - an amount of distance from the grid object's end that you want the actual grid to end at.  This does not affect Spacing but it does affect overall X-Width.

Y AXIS
See comments for X AXIS.

COLUMN
Choosing any Style other than "*None*" will expand the Properties Palette to include Column options and settings.  Columns will be placed at all Node points where the X and Y Grid lines meet.  Anchored Columns can be Deleted or Copied to other Node Points.

Once the Add Column Grid Properties Palette is active, you will find a grid attached to your cursor.  Its size and shape depend on the last settings.  All you have to do is place the grid and set the rotation angle by picking a second point in space or by hitting the Enter key

Note:
If you once specified a large grid with numerous bays, you might find that you get a warning dialogue box indicating that the grid may take some time to create.  You can fix this by using a different size or number of bays or simply ignore the message.

Illustrated to the right, I show a Rectangular and a Radial Shaped Grid with Columns that were automatically Attached when the Grids were placed.  Any change to the Column Grid will affect the position and number of Columns.  If you expand the size or number of Gridlines, you do not automatically get new Columns for those new Node points.  Likewise if you reduce the Grid size and then expand it once again, you lose Columns.  At least it is pretty easy to repopulate a Grid by Copying the Columns or by using the Node Anchor Tool.

3Modifying Column Grids 3-12 GRIDS
Modify Column Grid Properties Palette
Alt.Menu Design> Grids> Column Grid Properties..
grids_columns_edit_toolbutton.gif (425 bytes) grids_columns_toolbar.gif (1664 bytes)
Keyboard ColumnGridProps or -ColumnGridModify
Links Add Column Grid Properties Palette - for detailed explanation of options

When Modifying Column Grids, the Properties Palette offers all of the same options found when adding these Objects.  You will also be able to Modify the Rotation and Elevation height.  Under the Layout Type drop-down lists, you will now find a new option for Manual.

By changing a Column Grid's Layout Type to Manual, you free the Node Grip Points for manual positioning as illustrated below left.

Unfortunately,  there is no option to Add Columns automatically as when Adding a Column Grid.

Illustrated to the left I show the Context pop-up menu and how it too offers the option to set the Grid Spacing to Manual ("Layout Mode").  In addition to this, you also have options to Add or Remove Grid Lines.

When you set the Layout type to Manual, you should find that the option for spacing is now controlled by the Bays dialog box - see illustration below right.

Column Grid Properties - X and Y Spacing
Keyboard ColumnGridXAdd or ColumnGridYAdd
  ColumnGridXRemove or ColumnGridYRemove
  ColumnGridXMode or ColumnGridYMode - to change a Grid to Manual, Repeat or Space evenly

Once a Grid Object has been set to "Manual", you can use the Bays dialog box to Modify Spacing and Add/Remove Grid Lines.  You can also use the Context Menu, illustrated above left to Add or Remove Grid Lines.  In addition to using the Bays along X Axis or Bays along Y Axis dialog boxes for exact numeric distances for Grid Lines, you can use Grips to Stretch and position Grid Lines as you need.

Adding and Removing Grid Lines on a Column Grid
Add Grid Line
- allows you to define a new grid line based on a distance from the grid object's origin ( usually lower left corner ).   For typical use, you will need to set the Layout Mode to Manual so that your new grid line actually gets placed where you expect it to go.  See comments on Remove Grid Line for more details.

Remove Grid Line - allows you to remove a grid line based on a distance from the grid object's origin or you can simply Snap on the grid line you wish to remove.  If you attempt this with Layout Mode set to Repeat, it will not work.  If you attempt this with Layout Mode set to Space Evenly, a grid line will be removed and the spacing will be reset evenly for one less grid line.  If you attempt this with Layout Mode set to Manual, one grid line will be removed and no other changes will occur to the grid object.

To Add or Remove a Column Grid line, you should notice that a line shows up from the origin of your Column Grid and runs in the direction perpendicular to the grid lines that you intend to remove from or add to.  This line assists in defining how far from the origin you want to add a grid line but can be ignored when you are removing grid lines.  For removing grid lines, you simply need to pick on the base near the grid line and it will be deleted.

Clip Column Grid
Menu N.A.
grids_columns_edit_toolbutton.gif (425 bytes) grids_columns_toolbar.gif (1664 bytes)
Keyboard LayoutGridClip
Mouse Select Grid Object, right-click and Select Clip on Context pop-up menu

The Clip Column Grid tool may not prove to be as useful as the Clip Ceiling Grid tool but they work the same way.  Since a Column Grid begins as a rectangular or circular shape this is the only way to modify it to match an irregular plan design. 

Clipping requires a closed Polyline shape and there are two types of Clipping: Set Boundary and Add Hole. There is also an option to Remove Hole but you can simply delete the Polyline object that defines the Hole or Boundary.  The Clipping Object must be kept to maintain the clipping effect.  Grip Stretching the Clipping Object will redefine the Boundary or Hole and thus serves as a convenient option for modifying shapes.

grids_clip_example.gif (16075 bytes)

Set boundary - use to define a new perimeter shape for your column grid.  To remove, delete the boundary polyline.   Keep the boundary polyline on a separate layer if you want the option to turn it off separately from the grid.

Add hole - use to remove internal grid lines within a column grid.  To remove, use the Remove hole option or delete.   Keep the "hole" polyline on a separate layer if you want the option to turn it off separately from the grid.

Command: ColumnGridClip
Layout grid clip [Set boundary/Add hole/Remove hole]:

4Grids - Display Properties 4-12 GRIDS
Column Grid - Display Properties
Links Display Representations by Object - for more information on the subject of modifying Display Representations.

Since the Column Grid Object does not have a Style Family in ADT, you can only change its Display Properties by the Object.  This should not prove to be much of  a problem since we generally display all Column Grids in a similar way in a single drawing and even if you wanted one or more to be unique, it is possible by using an Object Display Override.

Illustrated above is one of the quickest ways to access the Column Grid Display Properties: via the Context pop-up menu.roof_display_props.gif (17806 bytes)

Illustrated to the right I show the Display Properties for the "Plan" Display Representation and the four Display Components that you will find for every Display Representation ( Model through Plan Screened ).

By default, the Node and Cell Display Components are not Visible and you may never need to make them Visible since their function is designed for Anchoring Objects like Columns more so than for printing.

Should you ever need to make these Display Components Visible, you can adjust the size of these Markers by using the Node Radius value field found on the "Other" tab

5Annotating Column Grids 5-12 GRIDS
Column Grid Labeling dialog box
Menu N.A.
grids_columns_labeling_toolbutton.gif (401 bytes) grids_columns_toolbar.gif (1664 bytes)
Keyboard ColumnGridLabel
Mouse Select Grid Object, right-click and Label... on Context pop-up menu

The Column Grid Labeling tool offers numerous options for values, ordering, position and appearance.  In the illustration to the right, I show the default X-labeling tab when you use the Column Grid Labeling dialog box for the first time on a Grid object.  Notice that there are no letters or numbers in the Number column. 

In order to get some sort of product from this dialog box, you will need to specify what you want for your labeling.  You can type in a letter, such as "A" or a number such as "1" or even a combination of the two, such as "1A".

grids_labeling_example.gif (7694 bytes)Number   - this column input field is controlled by the Automatically Calculate Values for Labels checkbox; if unchecked, you'll have to type every value in manually.  When Automatically Calculate Values for Labels is checked, you can use Ascending or Descending rules for how your numbers, letters or combinations of both behave.  Though you can type a value in at any point along the column, like in the middle, the Number fields work best if you type your numbers or letters in the top field.

Ascending - check this radio button to have numbers and/or letters increase from the Grid's origin out; e.g., 1, 2, 3, 4... Don't bother trying to get combinations like 1A, 2A, 3A... because all you will get is 1A, 2B, etc.

Descending - check this radio button to have numbers and/or letters increase from the farthest Grid line out back to the Grid's origin; and I do mean backwards because you will have to calculate the top number by counting backwards; i.e., you will need to type the highest number of your grid bubbles on the top line in the Number field.  You cannot simply go to the last column number field and type "1" or "A1", which would be more logical.  If you have a whole lot of bubbles, try using Ascending first to calculate the last number and then switch to Descending and type in the last number for the 1st value field.

Never Use Characters - this checkbox works in conjunction with the adjacent field where you specify the characters that you don't want to be used.  I believe the concept was for a long set of automatic letters, for example, where you know that you don't want a specific letter used. You can use commas to separate letters and numbers that you want filtered out but I have not found a way to specify a range of letters and/or numbers.  You can override the filtered letters or numbers by manually typing in any value you want.

Bubble Parameters
Top - for the Bubbles in the X-Direction, you can have your bubbles run along the top of the Grid object if this checkbox is checked.
Bottom - matches Top along the X-Direction.

Extension - the distance you want between the closest grid line and the center of the bubble

Bubble... - a button that you can use to Browse for another symbol/block to be used instead of the default ADT Grid Bubble.

Generate New Bubbles On Exit -  this will reset any value change you make when you come back to edit your bubbles; like changing the Extension length or renumbering the bubbles.  Use this option if you find that you need to adjust the bubbles and numbers for a new drawing scale.   Note: this will also reset any repositioning of bubbles you may make after they have been placed so it may not always be advantageous to keep this check box checked.

Y-Labeling tab - see comments above.

Stretching and Moving Grid Bubbles
Mouse Select Grid Bubble Object, right-click, Select specific Grip to Stretch as illustrated to the right.

Once you have completed the input of information in the Column Grid Labeling dialog box, you may have to do some minor editing after the bubbles and grid lines have been placed.

In the illustration to the right, I show a common problem where bubbles overlap because they are simply too close together and too large for this particular printing scale.  The solution is rather elegant: simply select the grid line and Stretch, with a Hot Grip, the middle position - as illustrated to the right.

grids_columns_labels_move.gif (6886 bytes)
Fonts and Bubble Sizes

grids_columns_bubble_text.gif (6917 bytes)If you don't set a current Text Style, "DDSTYLE", before you make your grid bubbles, RomanS may be used by default ( RomanS uses the "romans.shx" font ).  You can always go to the Text Style dialogue box and change the Font used for RomanS afterwards but be aware that many of ADT's symbols use RomanS by default and you could be changing other annotation symbols in your current drawing.  If you find that you've come this far and need to remap a

Font for RomanS, I suggest that you also Rename the Text Style "RomanS" to something like "Grid_bubble".

Before you move on to do other annotation symbols, create another new Text Style and make it current or they might end up using the same Text Style as your grid bubbles.

The size of the bubbles and the text within them is determined by the drawing scale - go to the Documentation pull-down menu and select Drawing Scale...

You can also use your own bubbles or simply modify the default ones but you will have to understand a bit about Multi-view Blocks.

Note: if you are in a hurry and just need a quick fix solution for changing the Grid Bubbles, you can insert one and use the Refedit command to modify it.  Once a Grid has been "bubbled", you should find that there is now a Block called BubbleDef in your drawing. When inserted, it will be small - be sure to not change the scale -   but you can change the color or object type/shape, etc.

Dimensioning Column Grids
Alt.Menu Document> AEC Dimension> Add AEC Dimension...
grids_dimension_button.gif (291 bytes) grids_columns_toolbar.gif (1664 bytes)
Keyboard AecDimAdd
Keyboard ColumnGridDim
Mouse Select Column Grid Object, right-click, Select AEC Dimension
Links Column Grid Bubbles -  Adding Display Representations - for information on how to get bubbles to show up in other displays, like RCP's.

Column Grids can be dimensioned Automatically in two different ways though you might never know a second option existed since the Context pop-up menu only offers one choice: Aec Dimension.

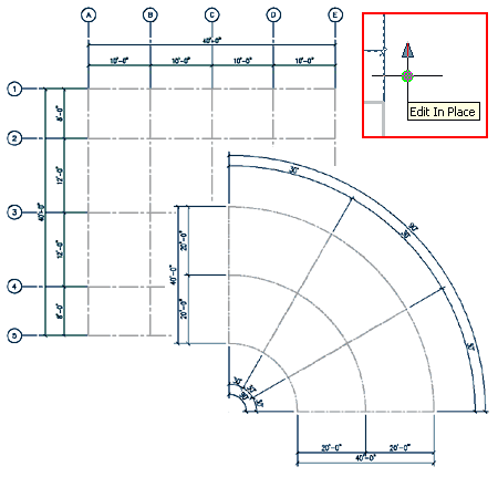
If you use the AecDimAdd command, you can dimension a Column Grid Object much like you would any other ADT Object; One side-at-a-time.  The benefit of this option is that Aec Dimensions automatically adjust to the Grid.

Illustrated to the left I show the Properties Palette and the default Style options you can Select from when adding Aec Dimensions to Grid Objects.  Illustrated in the upper right corner I show how you can use the Edit In Place feature of Aec Dimensions to move or adjust them as needed after adding them to your Grid Object.

If you use the "ColumnGridDim" command, however, you will be able to produce automatic dimensions in all four directions simultaneously - even on radial grids.  Once you select this command, you will be prompted for the distance you want your dimensions away from the closest grid line.  The Style is based on the current Dimension Style - DDIM.  The disadvantage of using this option is that you don't get Aec Dimensions but simply regular AutoCAD-like Dimensions.

6Column Grids - Customizing and Tricks 6-12 GRIDS
Column Grid Extensions

Unfortunately the Column Grid object was not designed with Extensions in mind and thus you will have to resort to creative solutions.  Illustrated to the right, I show one of those solutions you might use in a desperate situation.  By Adding Grid Bubbles to all sides, you can select all of the Grid Lines and Bubbles on those sides where you want an Extension Line and simply use the Properties Palette to set the Grid Bubble Scale to something incredibly small - see illustration to the right.  If you ever wish to restore the Modified Grid Bubbles to the same scale as their counterparts, use the ColumnGridLabel command to "Generate New Bubble on Exit".

A better solution would be to create a StandardGridBubble_Blank and use it in place of the default Grid Bubble, but sometimes we just don't have the time or patience to do what might make better sense.

Adding Columns After you have already created a Column Grid

These comments refer to Structural Members only and not other objects such as the Doric Column found under Mass Elements.

If you add Columns as part of the creation process of making a Column Grid, it is far easier to distribute columns at every Node than attempting to do it after you have already created the Column Grid.

If you already have a Column Grid created, you can use the Add Column tool to place a Column at any Node within your Column Grid.  After you have placed one Column, which is automatically Anchored, you can then use the Node Anchor tool to populate the rest of your Column Grid with the Column you just added.

If you attempt to Anchor a Column that has not been automatically anchored to your Column Grid ( a free floating Column ), then the process will require far more work.

More on Ordering the Column Grid Bubble Numbers

In the illustration to the right, I show how to create a set of numbers for the vertical grid lines that run from right to left instead of the common left to right order.

1. Check Automatically Calculate Values for Labels - unless you want to type each value in as unique values or values that ADT can't handle at this time; like 1A, 2A, etc.

2. Select the order - Since Grids usually originate at the left lower corner, this will be the first number position.  To go from left to right or top to bottom you need to keep this in mind.   This is why I used Descending order in this example.

3. Type in a number or letter in the top position (in place of "--") and pick somewhere else to see the sequence automatically ordered - Since my example demonstrates how to run numbers from left to right, I typed the highest number for the first position (or origin of the grid; i.e., 6).

4. Chose position of Lines and Bubbles - for X-labeling it will offer Top and Bottom and for Y-labeling it will offer Left and Right.

5. Type in the distance you want between the closest grid line and the center of the bubble - if you make a mistake you can use the stretch command or come back and change this value.

grids_columns_labels.gif (18022 bytes)

6. Check Generate New Bubbles on Exit - this will reset any value change you make when you come back to edit your bubbles; like changing the Extension length or renumbering the bubbles.  Note: this will also reset any repositioning of bubbles you may make after they have been placed so it may not always be advantageous to keep this check box checked.

The Bubble... button allows you to select your own custom Multi-View block should you happen to have one defined.

Column Grid Bubbles -  Adding Display Representations
Mouse Select Grid Bubble Object, right-click, Select Edit Multi-View Block Definition...
Links  

Column Grid bubbles are Multi-View objects so you may find that they don't show up in some of the Display Representations that you want to work with, like Reflected Ceiling plans.

Illustrated to the right, I show how you can add the display of Column Grid bubbles to any Display Representation.

Select any Grid bubble, right click on your mouse and select Edit Multi-View Block Definition... from the object-specific pop-up menu.  On the Multi-View Block Definition Properties dialogue box, select the View Blocks tab and select the Display Representation that you want to Add... your Multi-View Block to.  Once you have Added your Multi-View Block, use the View Directions to specify which views you want the Multi-View block to show up on.

Column Grids and Elevations

For projects where you need to use Column Grid Labels, invariably those Column Lines and Labels need to travel through numerous documents such as Elevations and Sections.

Illustrated to the right is an example of how I take the same Column Grid from my Floor Plan and drop it over my Sections.  After some minor adjustments, the grid ends up working fairly well.  By using the option to turn the Visibility of the X or Y-Axis Display Components Off, you can use the Column Grid as a series of lines rather than a Grid.

Now if I could just find a way to link the Plan Grid to all of my Section and Elevation Grids I wouldn't have to run around and Grip Stretch them whenever the Plan changes.

7Adding Ceiling Grids 7-12 GRIDS
Add Ceiling Grid Properties Palette
Alt.Menu Design> Grids> Add Ceiling Grid...
grids_ceiling_add_toolbutton.gif (434 bytes) grids_columns_toolbar.gif (1664 bytes)
Keyboard CeilingGridAdd

When Adding Ceiling Grids, the Properties Palette offers the option to set a Boundary and several options for spacing the grid lines.  If you need to create a Ceiling Grid that is not evenly spaced, create the closest layout and modify it after placement.

GENERAL
Boundary
- this drop-down list offers the option to "Select object..." for using a closed Polyline shape or Space Object to clip the Grid.  Typically I find that working with Polylines that I have traced along the inside edge of Walls is the most effective, though time consuming, method.

DIMENSIONS
Specify on Screen - set this drop-down list to "Yes" if you want to draw the Width and Depth by picking points on your screen.  When using a Boundary, it is best to use this option so you can drag the Grid out beyond the Boundary to create a clean edge.  This is required because Grids don't truncate and can only terminate at specific spaces as defined by the X and Y Axis values.

X - Width - total length of grid along the X-axis.

Y - Depth - total length of grid along the Y-axis.

A AXIS
Layout Type - this drop-down list offers two options: Space Evenly and Repeat.  The Space Evenly option allows you to specify the number of Bays (Grid-lines) instead of the distance between them.  The Repeat option allows you to set the distance between each Bay (Grid-line).  After you have created a Ceiling Grid, look for the Manual option on this drop-down list.  Note:  Though you may need to use the Specify on screen option, setting this before defining your X and Y Axis Bay Sizes is not possible because the Specify on screen option will lock out the option to set the Bay sizes.  Therefore, set the Bay sizes first and then set the Specify on screen option to Yes.

Bay Size - this option is only available when using the Repeat Layout Type.  Specify the distance between each Grid line.

Bay Number -  this option is only available when using the Space Evenly Layout Type.  Specify the number of Grid lines you want in any sized Ceiling Grid.

Start offset - an amount of distance from the grid object's origin that you want the actual grid to start at.   This does not affect Spacing but it does affect overall X-Width.

End offset - an amount of distance from the grid object's end that you want the actual grid to end at.  This does not affect Spacing but it does affect overall X-Width.

Y AXIS
See comments for X AXIS.

Ceiling Grids - Set Boundary

Using the Select Object... option for the Boundary drop-down list on the Properties Palette, when Adding Ceiling Grids, allows you to specify grids_ceiling_examples.gif (9612 bytes)an origin and then a second corner for the overall rectangular grid space; i.e, you can add a ceiling grid one grid at a time.   The grid will be limited by the proportions specified by the X-Baysize and Y-Baysize. Or, if you use the Divide By method, the grid will constantly be divided up to match the Divide By number.

Often a grid layout will not match the interior dimensions of a space and thus you will find it difficult to create a grid that stops right where the Wall does.  My personal trick for solving this type of problem is to first define the whole interior space with a closed polyline and then use the Boundary option to crop the ceiling grid to within this perimeter. You may need to define a ceiling grid that goes beyond the interior space so that the grid lines actually carry all the way to the edges.  To Set a Boundary, after the creation of a Ceiling Grid, see Clip Ceiling Grid below.

Ceiling Grids and File Size

For Reflected Ceiling work I always work over an Xref of the Floor Plan.  This not only allows for unique display options on the Plan but helps to prevent accidental editing of non-ceiling related objects.  In addition, in the overall scheme of things on a project, it helps keep the size of files low while allowing other project members to work on different pieces of a project simultaneously.

I have recently worked on some rather large commercial spaces with 13.5"x13.5" ceiling grids and found that the file size, based on the ceiling grid routine alone was 2.6Mb. 

Working as part of a collaborative team disbursed over great geographic distances, still makes one find the need to keep file size within a reasonable download time so I abandoned this ceiling grid routine for the traditional AutoCAD Hatch command.  The point  is that this routine may be "cool" but it can also drag a drawing down.  You may notice Osnap lag time which can be improved by setting Optimize for Speed on the AEC Editor tab of the Options dialog box (type "OP" on the command line).

8Modifying Ceiling Grids 8-12 GRIDS
Modify Ceiling Grid Properties Palette
Menu Design> Grids> Modify Ceiling Grid...
grids_ceiling_modify_button.gif (342 bytes) grids_columns_toolbar.gif (1664 bytes)
Keyboard CeilingGridModify
Links Add Ceiling Grid Properties Palette - for detailed explanation of options

When Modifying Ceiling Grids, the Properties Palette offers all of the same options found when adding these Objects.  You will also be able to Modify the Rotation and Elevation height.  Under the Layout Type drop-down lists, you will now find a new option for Manual.

By changing a Ceiling Grid's Layout Type to Manual, you free the Node Grip Points for manual positioning as illustrated below left.

Illustrated to the left I show the Context pop-up menu and how it too offers the option to set the Grid Spacing to Manual ("Layout Mode").  In addition to this, you also have options to Add or Remove Grid Lines.

When you set the Layout type to Manual, you should find that the option for spacing is now controlled by the Bays dialog box - see illustration below right.

Ceiling Grid Properties - X and Y Spacing
Keyboard CeilingGridXAdd or CeilingGridYAdd
  CeilingGridXRemove or CeilingGridYRemove
  CeilingGridXMode or CeilingGridYMode - to change a Grid to Manual, Repeat or Space evenly

Once a Ceiling Grid Object has been set to "Manual", you can use the Bays dialog box to Modify Spacing and Add/Remove Grid Lines.  You can also use the Context Menu, illustrated above left to Add or Remove Grid Lines.  In addition to using the Bays along X Axis or Bays along Y Axis dialog boxes for exact numeric distances for Grid Lines, you can use Grips to Stretch and position Grid Lines as you need.

Add Grid Line - allows you to define a new grid line based on a distance from the grid object's origin ( usually lower left corner ).   For typical use, you will need to set the Layout Mode to Manual so that your new grid line actually gets placed where you expect it to go.  See comments on Remove Grid Line for more details.

Remove Grid Line - allows you to remove a grid line based on a distance from the grid object's origin or you can simply Snap on the grid line you wish to remove.  If you attempt this with Layout Mode set to Repeat, it will not work.  If you attempt this with Layout Mode set to Space Evenly, a grid line will be removed and the spacing will be reset evenly for one less grid line.  If you attempt this with Layout Mode set to Manual, one grid line will be removed and no other changes will occur to the grid object.

To Add or Remove a Ceiling Grid line, you should notice that a line shows up from the origin of your Ceiling Grid and runs in the direction perpendicular to the grid lines that you intend to remove from or add to.  This line assists in defining how far from the origin you want to add a grid line but can be ignored when you are removing grid lines.  For removing grid lines, you simply need to pick on the base near the grid line and it will be deleted.

Ceiling Grid Grip Points and OSNAPs

The four Grip Points that you have for working with Ceiling Grids can quickly prove to be rather disappointing because of how they affect the Grid.  Though you can use them to Stretch the overall Dimensions in any of the four directions and consequently increase or decrease the number of Bays, the Grid does not remain static in position; i.e, existing grid lines will adjust if the Insertion Point is affected by the Grip Stretching.

In addition, Offset Values set on the Properties Palette reposition the Grip Points leaving you with no visual cue about the Offset.

If you activate the Cell Markers in the Display Properties dialog, you should find that you can OSNAP to Center on these Markers and may be helpful in positioning some ceiling fixtures.

On a more positive note, the Insert, Node and Center OSNAPs work rather well and can be of considerable benefit when working with the Ceiling Grids.  It is important to understand the value of the Node OSNAP since it can be helpful in productivity.  With the Intersection OSNAP, you may find that you Snap to numerous Objects which can slow down the movement of your cursor while the NODE OSNAP finds only finds the intersection points on the Grid.

Clip Ceiling Grid
Menu Design> Grids> Clip Ceiling Grid...
grids_ceiling_clipping_toolbutton.gif (434 bytes) grids_columns_toolbar.gif (1664 bytes)
Keyboard CeilingGridClip

If you have already created a ceiling grid and need to crop it or simply add a hole around an internal structure, you can use the CeilingGridClip command to add clipping boundaries or to create internal holes.  Use closed polyline shapes to to define the areas that you want to clip to or make holes of.

To remove a Boundary or Hole, you can use the Remove hole option or simply delete the edge defining Pline.

Command: CeilingGridClip
Ceiling grid clip [Set boundary/Add hole/Remove hole]:

grids_ceiling_clipping_example.gif (19061 bytes)
9Ceiling Grids - Display Properties 9-12 GRIDS
Ceiling Grid - Display Properties
Links Display Representations by Object - for more information on the subject of modifying Display Representations.

Since the Ceiling Grid Object does not have a Style Family in ADT, you can only change its Display Properties by the Object.  This should not prove to be much of a problem since we generally display all Ceiling Grids in a similar way in a single drawing and even if you wanted one or more to be unique, it is possible by using an Object Display Override.

Illustrated above is one of the quickest ways to access the Ceiling Grid Display Properties: via the Context pop-up menu.roof_display_props.gif (17806 bytes)

Illustrated to the right I show the Display Properties for the "Plan" Display Representation and the four Display Components that you will find for every Display Representation ( Model through Plan Screened ).

By default, the Node and Cell Display Components are not Visible and you may never need to make them Visible since their function is designed for Anchoring Objects like Ceiling Fixture Multi-View Blocks more so than for printing.

roofs_display_props_tab.gif (15611 bytes)

Should you ever need to make these Display Components Visible, you can adjust the size of these Markers by using the Node Radius value field found on the "Other" tab

Ceiling Grid - Display in Plan
Menu Format> Display Manager...
setup_display_manager_button.gif (358 bytes) setup_toolbar.gif (1204 bytes)
Keyboard DisplayManager
Links DisplayManager - for more information on how to work with the Display Manager

By default, the Ceiling Grid Object will only Display in the Reflected Display Configurations and at times designers prefer to see a drawing in Plan while designing a Ceiling so here's what you can do.

The Ceiling Grid Object actually has the option for different Display Representations for Model, Plan, Plan High Detail and so on but none of these are utilized in the default template files.  By using the Display Manager, you can access the Ceiling Grid Object under the "Representations by Object" folder and activate one or more of these Display Representations.

Illustrated to the right I show the default list of Display Representations for a Ceiling Grid Object and how none are used for the Plan, Plan High Detail or Plan Low Detail Display Sets.  If you want your Ceiling Grid to appear in Plan as it does in Reflected, simply check the corresponding box as illustrated to the right.  Another option is to Modify the Plan Display Representation and then activate it for the Plan Display Set.  You might, for example, make the Ceiling Grid appear in Plan but not printable.

10Ceiling Grids - Customizing and Tricks 10-12 GRIDS
Ceiling Grid Symbols
Links Adding Ceiling Fixtures - for information on how to add ceiling fixtures like Fans and Smoke Detectors.
  Adding Electric Fixtures - for information on how to add lights and how to mask ceiling gridlines.
  Mask Block Styles - for information on how Mask Blocks work and how you can create your own.

When using Architectural Desktop's Electrical Fixtures, like the fluorescent 2x4 lights, you will be prompted to "Select Layout Node" which Anchors the Multi-View Block to the closest Ceiling Grid Node near your Selection.  After you have Anchored the Object to the Ceiling Grid Node, you may find that some forms of manipulation are tricky; such as Rotating.

Rotating an Anchored Object
Illustrated to the right I show how you can use the Context pop-up menu to work with the Node Anchor on a 2x4 Fluorescent Ceiling Fixture.  By Rotating around the Z-axis you can produce results similar to using the Rotate command.

For cases where you need to Trim a Ceiling Grid Line, you may be able to take advantage of the Masking feature within some of the default Ceiling Fixtures.  The 2x4 Fluorescent Light is actually not a true Multi-View Block but rather a Multi-View Block nested inside a special type of Block called a Mask Block.  The Mask Block holds a 2D Closed Shape that will act as a Wipeout but can also hold other Graphic Objects such as a Multi-View Block.

Masking a Ceiling Grid
Illustrated to the right I show how you can use the Context pop-up menu to Attach a Mask Block to a Ceiling Grid for the Reflected Display Representation (the Current one) and hide any Grid Lines that pass through the Block.

Ceiling Grids for Presentation

By default, Ceiling Grid Objects Insert at an Elevation Height of zero and that is actually the best position since other Heights can cause the notorious cross-plane linework issue that many AutoCAD users are all too familiar with.

The primary problem with a Ceiling Grid at the ground plane is that it makes no sense to have it there when you use your drawing for 3D Related work; from simple Perspectives to Generating Sections and Elevations.

What you have to consider is the purpose of your Ceiling Grid which is typically Construction Documents.  This means that you may have to think of your ceiling work as two separate tasks and possibly even separate files; one for CD's and one for Presentation use.  For those wanting to Render ceilings, for example, this 2D Ceiling Grid Object and its associated 2D MvBlock Light Fixtures produce nothing because there is no 3D Geometry to map Materials to.  Some solve this problem by adding a Slab that can then receive a generic t-bar ceiling material.

At times I have found that I actually needed a 3D Ceiling Grid because of the numerous places that I wanted it to display correctly.  For work like this, though I caution against it, I have used Curtain Walls that I turned sideways through the z-axis.

In the illustration to the right I show that the Ceiling Grid Object and its associated MvBlock Objects will display in Shaded Views and can be good enough for simple presentation output.

   

© Copyright 2001- 2004 ARCHIdigm. All rights reserved.